



Elite Trimworks
7 " PVC Dentil Fascia Exterior Molding
SKU: PVC-203-8
$92.19 USD /Shipping calculated at checkout.
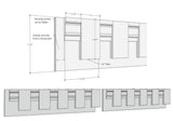
7 " PVC Dentil Fascia Exterior Molding for trimming under soffits as well to add additional detail to extra large exterior moldings.
In various lengths 7” high with a projection of 1 ¼"