 
 
 
 
 
 
Elite Trimworks
Round Step Window Surround
SKU: PVC-WS-ST-16I-24O
$261.37 USD /Shipping calculated at checkout.
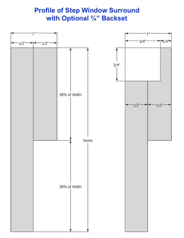
Round or Oval Two Step Window Surround, 1" thick made to order for any window desired. Accurately made to order with Cellular PVC to last a lifetime.
PVC Round or Oval Window Surrounds are an excellent replacement for polyurethane as they are more impact resistant and come in in all kinds of profiles, thickness, and sizes.
We ship the pieces separate to allow for hiding the mechanical fasteners used for installing. The second layer is meant to be applied later and pinned in place after installation of the backer board. May be ordered with either square or with a ¾" backset.
 United States
 United States      
   Shop CAD
 Shop CAD
     
	 
 
 
 
 
 
 
 
 
 
 
 
